不動産販売【横須賀本社】
都心や横浜市内各所へのアクセス良好の建売住宅を販売します。
価格 4,980万円→4,400万円
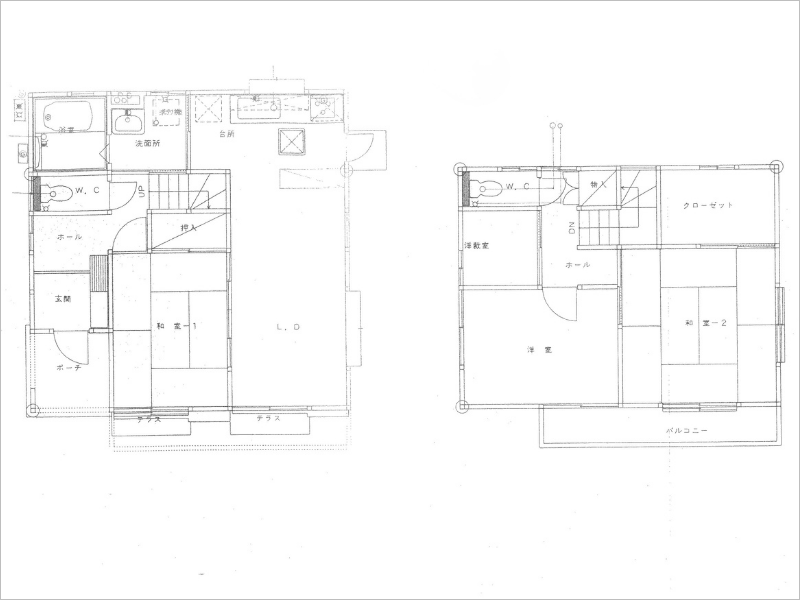
※2026/03/06価格変更間取り 3LDK(洋室4.8/4.8/5.8帖、LDK 14.2帖、ロフト2.6帖) 所在地 神奈川県横浜市保土ヶ谷区西谷3丁目26 交通 相鉄本線 西谷駅 徒歩9分
相鉄本線 上星川駅 徒歩17分
相鉄新横須賀線 西谷駅 徒歩9分建物面積 74.63㎡ 建物構造・規模 木造2階建 築年月 2025年4月(未入居物件) 駐車場 1台分あり(車種に制限あり) 土地面積 公募 50.85㎡(15.38坪) 土地権利 所有権 用途地域 第1種住居地域 接道状況 南東16.2m(公道) 建ぺい率 60% 容積率 200% 周辺施設 横浜西谷郵便局 140m
東川島診療所 170m
マルエツ西谷店 350m
セブンイレブン横浜西谷町店 350m
川島町公園 500m
横浜市立川島小学校 600m
リビングのガラスドアをはじめとしたハイドアや勾配天井が開放感をアップ。
女性目線で選んだクロスや床材は、ホワイトをメインとしつつグレーを要所に取り入れています。
建売だけど、シンプルすぎない。オシャレで温かみがある家に仕上がりました。
オススメPOINT便利なアクセスと快適な暮らしを両立!駅徒歩9分の好立地にある新築建売住宅。
メインの駅やバス路線へのアクセスが良好なため、通勤・通学やお出かけにとても便利です。
都心や横浜市内各所への移動もスムーズです。
スーパーや飲食店、コンビニエンスストア、医療・福祉施設など、生活必要な施設が徒歩圏内に揃っているため、毎日の暮らしが快適です。
学校や公園も近く、子育て環境としても安心できる地域です。
物件周辺地図
お問合せ先購入をご希望のかたは、お電話もしくはお問合せフォームよりご連絡ください。
横須賀本社
TEL 046-854-5556 / 営業時間 9:00~18:00
神奈川県横須賀市森崎1-9-4

価格 1,900万円 間取り 3SLDK(和室2、洋室1、サービスルーム2) 所在地 神奈川県横須賀市太田和2丁目15-7 築年月 1997年1月 交通 京急久里浜線│三浦海岸駅(6,800m)バス15分 太田和 停歩8分
JR横須賀線│衣笠駅 バス20分 太田和 停歩8分建物面積 89.42㎡ 建物構造・規模 木造2階建 現況 空家 土地権利 所有権 土地面積 公募226.62㎡(68.55坪) 用途地域 1種低層/1種住居 建ぺい率 40% 容積率 80% 接道状況 南東6.2m、接面12.6m 私道面積(負担) なし 周辺施設 ファミリーマート横須賀御幸浜店 561m
ジョナサン横須賀店 580m
クリエイトエス・ディー横須賀長坂店 578m
横須賀市立荻野小学校 571m
武山幼稚園 605m
横須賀市立市民病院 603m
横須賀長坂郵便局 526m
横須賀市南消防署西分署 602m
オススメPOINT閑静な住宅街にある中古戸建です。
日当たりが良い10坪以上の広い庭があるため、家庭菜園やペット飼育など使い方は自由。
また、庭には物置もあるため収納には困りません。
建物2階には洋裁室があり、リモートワーク、書斎などにお使いいただけます。
※残置物は処分してお引渡しいたします。
物件周辺地図
お問合せ先購入希望のかた、住宅についてのお話を聞きたいかたは、お電話もしくはお問合せフォームよりご連絡ください。
横須賀本社
TEL 046-854-5556 / 営業時間 9:00~18:00
神奈川県横須賀市森崎1-9-4
住宅街にある駐車場をお貸しします。
駐車場名 野比 岡田駐車場 所在地 神奈川県横須賀市野比1丁目45-3 交通 京急久里浜線│YRP野比駅 徒歩9分 賃料 月額1.0万円、仲介手数料1ヶ月+消費税 契約期間 2年
物件周辺地図
お問合せ先借用希望のかた、駐車場についてのお話を聞きたいかたは、お電話もしくはお問合せフォームよりご連絡ください。
横須賀本社
TEL 046-854-5556 / 営業時間 9:00~18:00
神奈川県横須賀市森崎1-9-4








































